Проект деревянного дома из лафета «Блумфилд» построен по норвежской технологии и выглядит он как лучший представитель скандинавской традиционной архитектуры.
Проект по-скандинавски практичен и в то же время комфортен для проживания семьи из 2-4 человек.
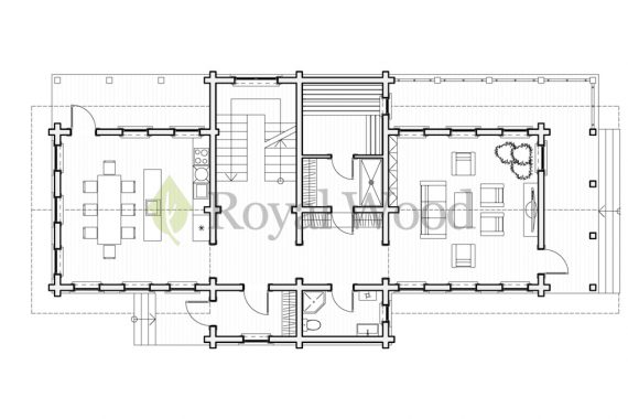
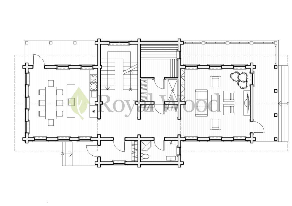
Первый этаж поделен на две зоны. Правое крыло дома занимает просторная гостиная с камином. Из гостиной можно попасть на крытую террасу. Левое крыло дома занимает кухня со столовой. В центральной части расположен тамбур, холл с лестницей, ведущей на второй этаж.
Также в доме предусмотрена спа- зона с финской парной, душевой и санузлом.
На мансардном этаже расположены две спальни и ванная комната.
Если вам понравился проект, но вы хотите сделать какие -либо изменения — свяжитесь с нами, и наши архитекторы вам помогут с проектом будущего дома.





