Проект «Ривервью» — это отличный загородний дом, совмещенный с баней. Может также использоваться в качестве агроусадьбы или гостевого дома.
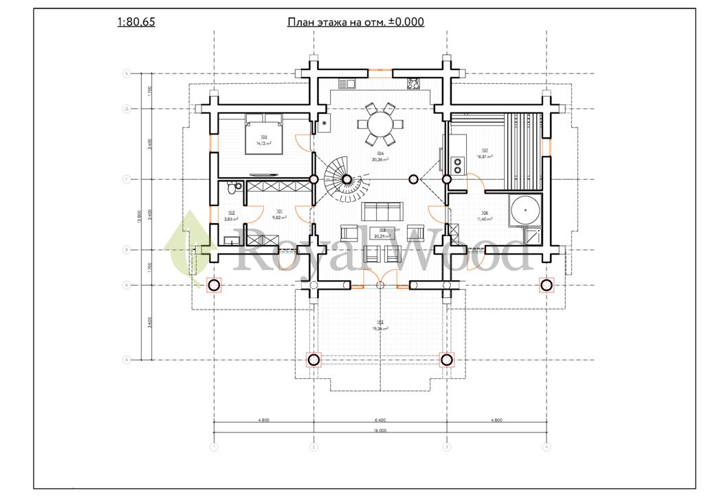
Вход в дом расположен по левую сторону от террасы. Зайдя в дом, вы попадаете в просторный тамбур с гардеробной. Слева размещен гостевой санузел. Из гардеробной вы попадаете в потрясающий зал с винтовой лестницей и камином. Здесь гостиная объединена с кухней и столовой зоной. Второй свет и наличие большого количества окон до пола создает эффект еще большего пространства. Гостиная выглядит богато и уютно одновременно. Из гостиной также есть выход на террасу, на которой можно расположить барбекю и на которой владельцы дома, наверняка, будут проводить большую часть времени в весенне — летний период года.
Правое крыло дома отведено под баню, в которой комфортно сможет отдыхать компания до 8 человек. Для спа- процедур предусмотрена также просторная душевая комната.
На первом этаже дома также предусмотрена одна спальня.
На втором этаже расположена студия, которая может быть использована в качестве игровой комнаты или спальни.





