Этот четырехэтажный бревенчатый гостиничный комплекс разрабатывался нашими архитекторами для частного инвестора из Санкт-Петербурга.
Комплекс занимает отдельный остров на о. Вуокса и перед нашими архитекторами стояла достаточно сложная задача расположить все необходимые помещения на достаточно небольшом участке земли с учетом сложного рельефа. Сразу было принято обоюдное решение не переделывать ландшафт, а попытаться максимально вписать архитектуру гостиницы в существующий ландшафт острова.
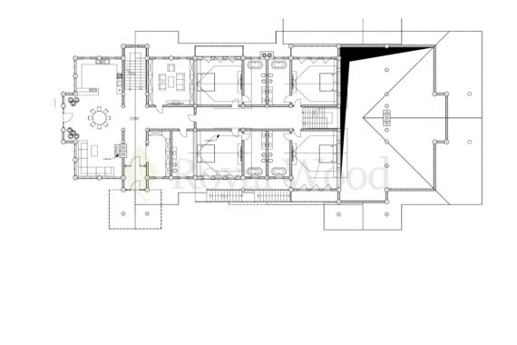
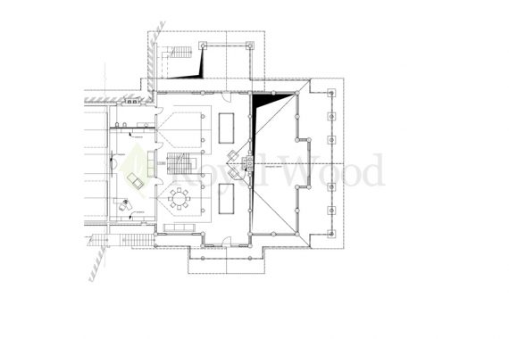
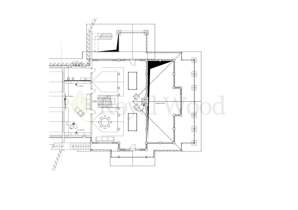
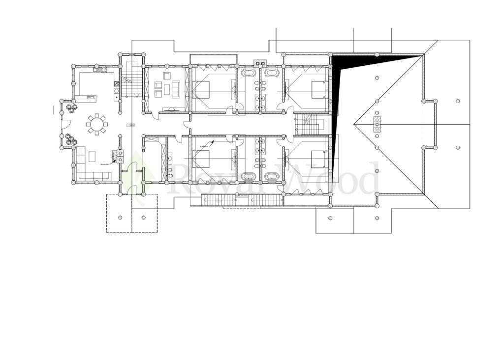
Для решения стоящих задач было решено строго зонировать пространство гостиницы по этажам. Так, на первом этажа комплекса расположена зона для проведения торжеств и столовая зона . Это достаточно просторный ресторан на 20-30 человек с открытым камином, облицованным натуральным горным камнем, а также кухня, помещения для хранения продуктов, женский и мужской санзузлы, гардеробная.
Второй этаж – зона проведения досуга. Здесь располагается кинотеатр, бильярдная, лаунж – зона с камином, санузел и кальянная.
Третий этаж гостиницы – гостевая зона с отдельным входом с улицы. Тут расположены три спальни с отдельными санузлами. Также для гостей предусмотрена своя кухня и столовая зона, а также переговорная комната.
На четвертом этаже гостиницы два улучшенных номер suite с гостиными и ванными комнатами. А также один президентский люкс.
Для строительства применяется уникальная канадская безусадочная технология “post and beam”. В проекте используется отборный старорастущий кедр диаметром от 45 мм и выше. В декоре используются натуральные природные материалы: сланец, горный камень, дерево и стекло.
Если вы планируете строительство гостиницы, кафе или ресторана из дерева – вы можете полностью доверить нам выполнение всех видов работ по проектированию, производству и строительству деревянных объектов “под ключ”.







